Skip to main content

Bitus Home 30-B

Šī moduļu māja ir kompakts, bet izteiksmīgs risinājums tiem, kas novērtē atvērtu plānojumu un gaismas piepildītu telpu. Pirmajā stāvā izvietota dzīvojamā zona ar virtuvi un vannasistabu – telpa, kur augstie griesti un lielie logi rada viegluma un telpiskuma sajūtu, ļaujot videi ieplūst mājā.

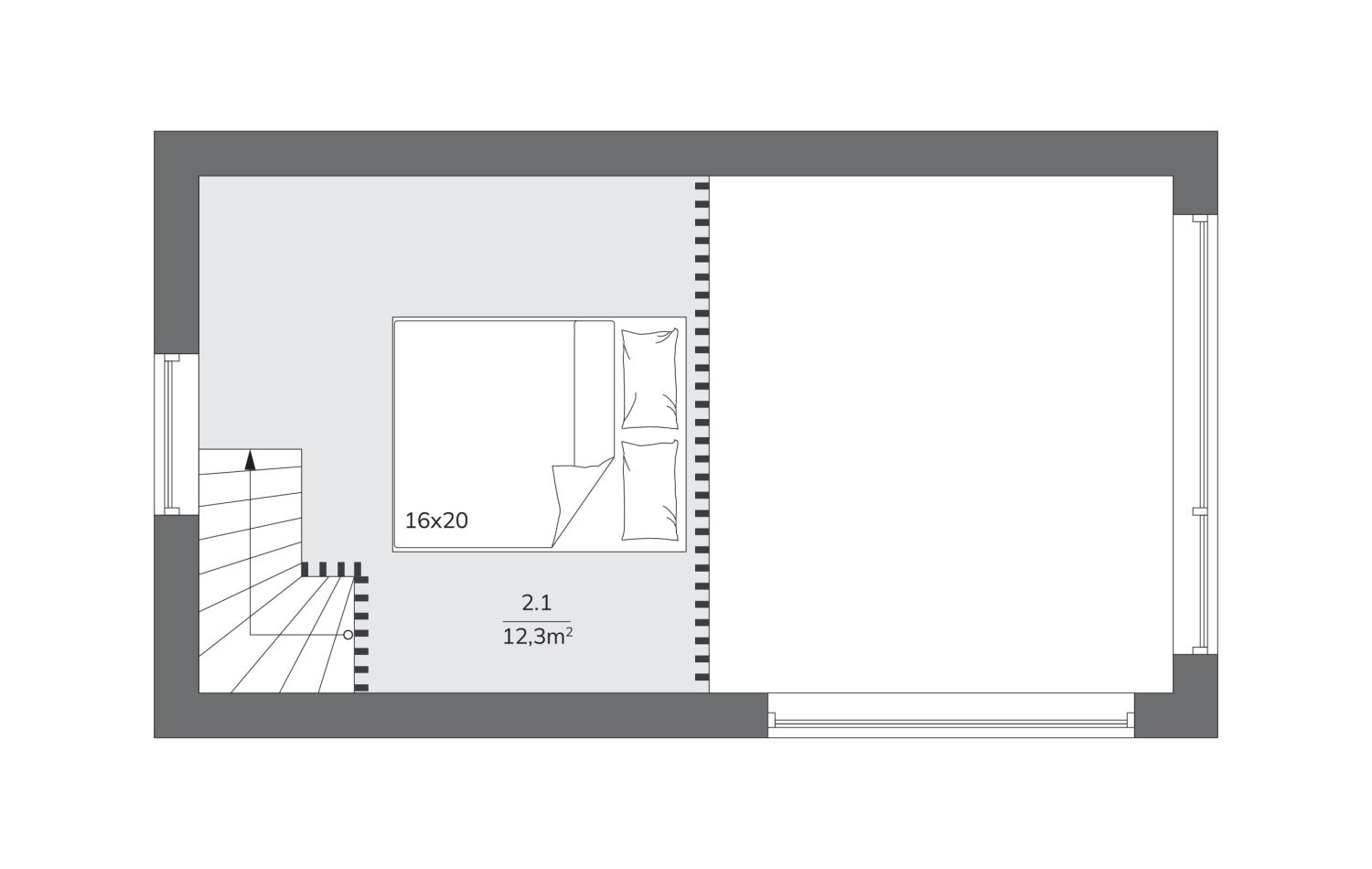
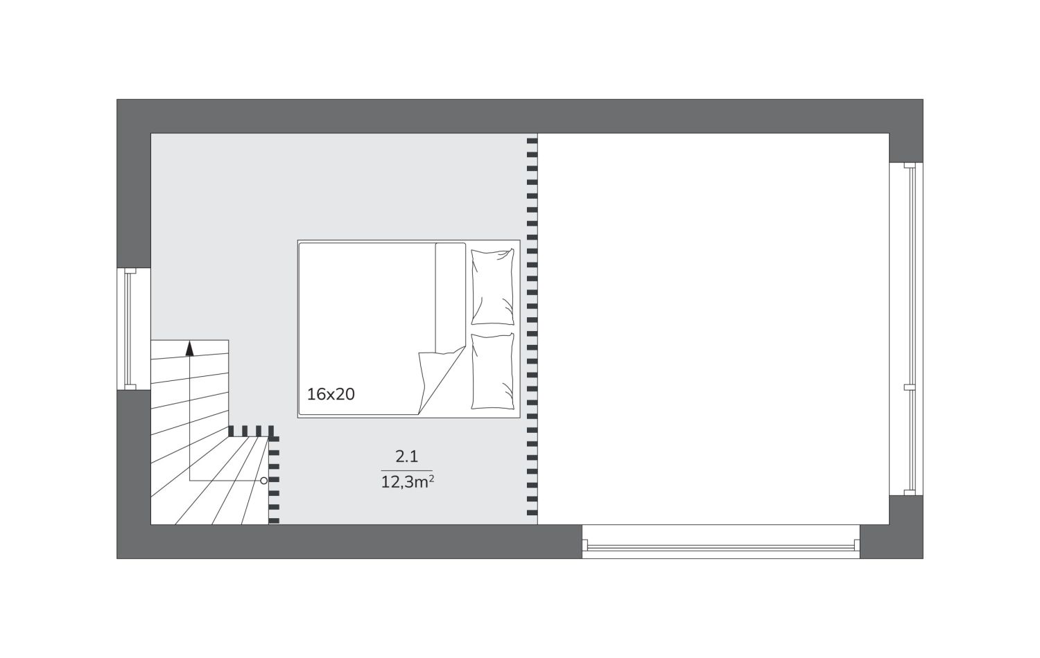
Guļamzona ir izvietota bēniņos, atstājot vairāk vietas dzīvojamai zonai un radot privātu, nošķirtu vietu atpūtai. Uz bēniņu līmeni ved kāpnes ar integrētu skapi – praktisks risinājums, kas apvieno uzglabāšanas iespējas ar telpas funkcionalitāti. Šo zonu iespējams pielāgot arī kā lasītavu vai mierīgu atpūtas stūrīti, un bērniem tā bieži kļūst par iemīļotu, noslēpumainu pasauli ikdienas rotaļām un sapņiem.

  • Apbūves laukums

    30 m2

  • Garums

    7,25 m

  • Platums

    4,135 m

  • Mājas augstums

    4,00m

  • Dzīvojamā platība

    22,7 m2

  • Bēniņi / Lofts

    12,3 m2

Mājas iekšējās un ārējās apdares risinājumus iespējams pielāgot atbilstoši jūsu vēlmēm – izvēloties apdares materiālus, krāsas un faktūras, kas atbilst jūsu gaumei un apkārtējās vides noskaņai.

Logu izvietojumu var mainīt, lai maksimāli izmantotu skatu, dienasgaismu un saules ceļu dienas laikā. Māju iespējams izgatavot arī spoguļattēlā vai ar atšķirīgu jumta dizainu, nodrošinot tās saderību ar konkrēto apbūves vietu un arhitektonisko kontekstu.

Šī māja ir piemērota gan dzīvošanai visa gada garumā, gan kā kvalitatīva atpūtas vieta. Tā ir ātri uzstādāma, energoefektīva un radīta, domājot par ilgtspēju, komfortu un estētisku līdzsvaru.

  • BH 30 1 1
  • BH 30 1 2
  • BH 30 1 3
  • BH 30 1 4
  • BH 30 1 1
  • BH 30 1 2
  • BH 30 1 3
  • BH 30 1 4

“Bitus Home arhitektu veidotie mājokļi ir radīti tiem, kas novērtē pārdomātu dizainu, funkcionalitāti un dzīves kvalitāti visa gada garumā.”

Bitus Home

Radīta ilgtermiņam, būvēta ar pārliecību.

Mūsu mājas ir radītas Latvijas klimatam – tās sniedz patīkamu siltumu un drošību pat skarbākajās ziemās. Ražotas pēc stingriem Skandināvijas būvnormatīviem, tās izceļas ar izturību, energoefektivitāti un ilgmūžību.

Mēs piedāvājam ne tikai augstākās kvalitātes un komfortablu mājokli, bet arī pārskatāmas un prognozējamas izmaksas, kas ļauj jums droši plānot savu jauno māju, izvairoties no negaidītiem izdevumiem.


Sadarbības process –
soli pa solim.

Katrs veiksmīgs projekts sākas ar skaidru ceļu no idejas līdz gatavai mājai. Lai padarītu šo procesu vienkāršu un saprotamu, esam izveidojuši skaidru sadarbības procesa aprakstu. No pirmās sarunas līdz atslēgu nodošanai – katrs solis ir pārdomāts, lai nodrošinātu precizitāti, kvalitāti un prognozējamu rezultātu.

Ieinteresēja? Sazinies!

Privacy Overview

This website uses cookies so that we can provide you with the best user experience possible. Cookie information is stored in your browser and performs functions such as recognising you when you return to our website and helping our team to understand which sections of the website you find most interesting and useful.

Strictly Necessary Cookies

Strictly Necessary Cookies come from the current website (bitus.lv) and place cookies in the visitor's browser. First-party cookies help you make the website useful, by activating basic functions such as language and page navigation. First party cookies are always activated so that the website can function as optimally as possible.

[pll_language]
Set off: bitus.lv
Duration: 1 day

[moove_gdpr_popup]
Set off: bitus.lv
Duration: 12 months

3rd Party Cookies

We use third-party cookies from Google. These cookies are set by Google Analytics 4 to collect anonymous information such as the number of visitors to the site, and the most popular pages.

_ga
(Used to distinguish between users)
Powered by: bitus.lv
Duration: 12 months

_ga_*
(Used to distinguish between users)
Powered by: bitus.lv
Duration: 12 months

_gid
(Used to distinguish between users)
Powered by: bitus.lv
Duration: 24 hours

_gat_UA*
(Used to distinguish between users)
Powered by: bitus.lv
Duration: 1 minute

We use third-party cookies from Meta. These cookies are set by Meta Pixel to collect anonymous information such as the number of visitors to the site, and the most popular pages.

_fbq
(Used to distinguish between users)
Powered by: bitus.lv
Duration: 12 months

Keeping these cookies enabled helps us improve our website. Thanks!