Skip to main content

Bitus Home 60-B

Šī 60m² māja piedāvā plašumu un funkcionalitāti, apvienojot modernu dizainu ar gudriem telpas izmantošanas risinājumiem.

Vienā mājas pusē izvietota plaša viesistaba, kas apvienota ar pilnībā aprīkotu virtuvi. Lielie logi piepilda telpu ar dabisku gaismu, radot atvērtu un gaišu atmosfēru. Šī telpa veidota kā mājīgs un daudzfunkcionāls centrs kopābūšanai, atpūtai un ēdiena gatavošanai, kur praktisks izkārtojums ļauj ērti darboties un baudīt ikdienu bez liekiem ierobežojumiem.

  • Apbūves laukums

    60 m2

  • Garums
    12,50 m
  • Platums
    4,80 m
  • Mājas augstums
    4,25m
  • Dzīvojamā platība

    48,3 m2

  • Bēniņi / Lofts

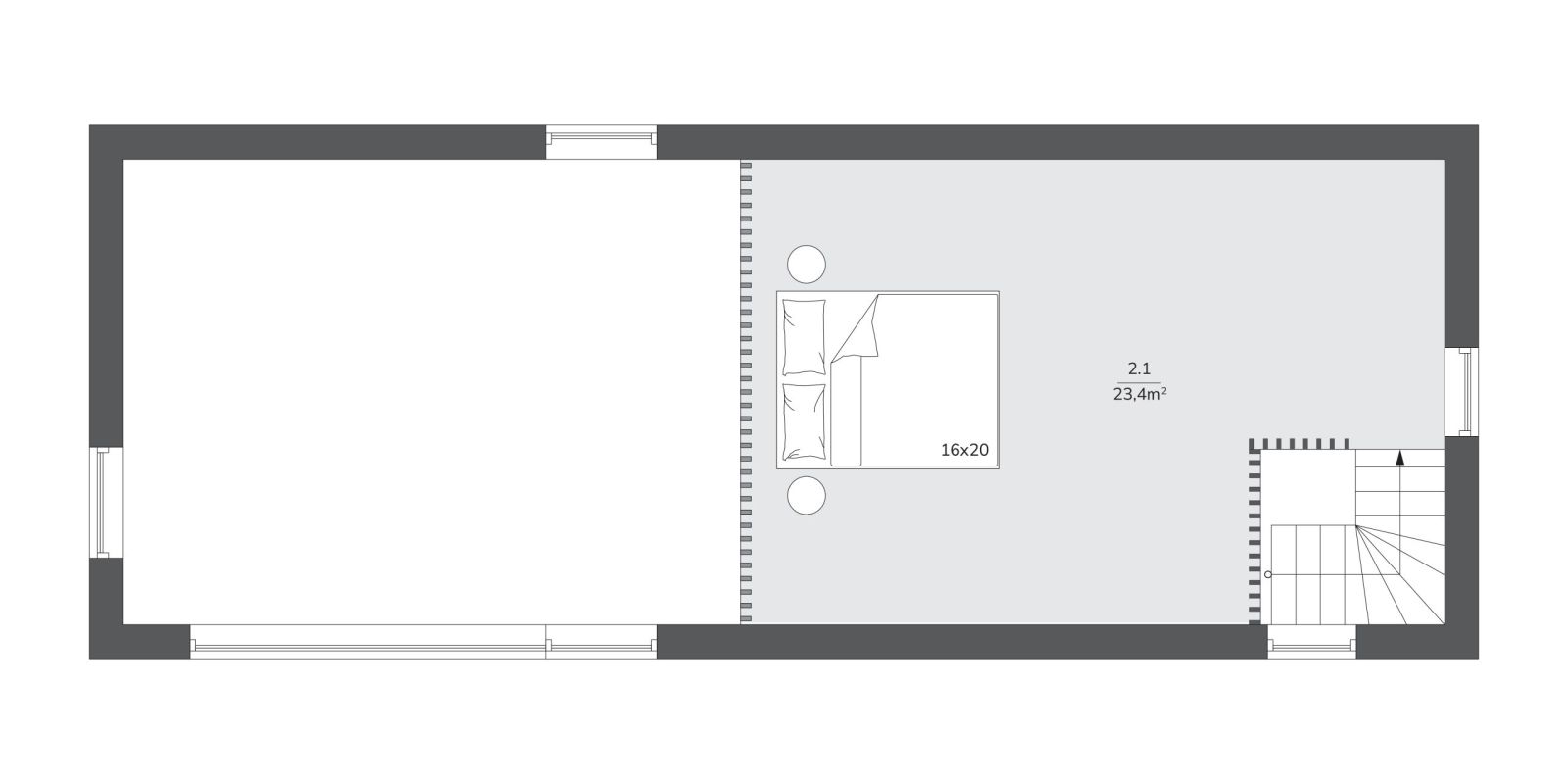
    23,4 m2

Mājā ir viena liela guļamistaba, kas nodrošina privātumu un ērtības, savukārt lofts piešķir mājai papildu iespējas. Bērniem tas var kļūt par iemīļotu rotaļu un atpūtas vietu, bet pieaugušajiem – par papildus guļamzonu vai nelielu darba telpu. Uz bēniņu zonu ved trepes ar iebūvētu skapi – gudrs un praktisks risinājums, kas nodrošina vietu mantu glabāšanai, saglabājot mājokli kārtīgu un funkcionālu.

Pilnībā aprīkotā vannasistaba nodrošina visas nepieciešamās ērtības, savukārt mājas dizainu iespējams pielāgot, izvēloties apdares materiālus, logu un durvju izvietojumu, lai tā organiski iekļautos vidē un atbilstu individuālajām prasībām.

Šī māja ir energoefektīva, ātri uzstādāma un piedāvā praktisku telpas izkārtojumu ar plašuma sajūtu, kas pielāgojas gan ikdienas gaitām, gan atpūtai.

  • BH 60 2 1
  • BH 60 2 2
  • BH 60 2 3
  • BH 60 2 4
  • BH 60 2 1
  • BH 60 2 2
  • BH 60 2 3
  • BH 60 2 4

“Bitus Home arhitektu veidotie mājokļi ir radīti tiem, kas novērtē pārdomātu dizainu, funkcionalitāti un dzīves kvalitāti visa gada garumā.”

Bitus Home

Radīta ilgtermiņam, būvēta ar pārliecību.

Mūsu mājas ir radītas Latvijas klimatam – tās sniedz patīkamu siltumu un drošību pat skarbākajās ziemās. Ražotas pēc stingriem Skandināvijas būvnormatīviem, tās izceļas ar izturību, energoefektivitāti un ilgmūžību.

Mēs piedāvājam ne tikai augstākās kvalitātes un komfortablu mājokli, bet arī pārskatāmas un prognozējamas izmaksas, kas ļauj jums droši plānot savu jauno māju, izvairoties no negaidītiem izdevumiem.


Sadarbības process –
soli pa solim.

Katrs veiksmīgs projekts sākas ar skaidru ceļu no idejas līdz gatavai mājai. Lai padarītu šo procesu vienkāršu un saprotamu, esam izveidojuši skaidru sadarbības procesa aprakstu. No pirmās sarunas līdz atslēgu nodošanai – katrs solis ir pārdomāts, lai nodrošinātu precizitāti, kvalitāti un prognozējamu rezultātu.

Ieinteresēja? Sazinies!

Privacy Overview

This website uses cookies so that we can provide you with the best user experience possible. Cookie information is stored in your browser and performs functions such as recognising you when you return to our website and helping our team to understand which sections of the website you find most interesting and useful.

Strictly Necessary Cookies

Strictly Necessary Cookies come from the current website (bitus.lv) and place cookies in the visitor's browser. First-party cookies help you make the website useful, by activating basic functions such as language and page navigation. First party cookies are always activated so that the website can function as optimally as possible.

[pll_language]
Set off: bitus.lv
Duration: 1 day

[moove_gdpr_popup]
Set off: bitus.lv
Duration: 12 months

3rd Party Cookies

We use third-party cookies from Google. These cookies are set by Google Analytics 4 to collect anonymous information such as the number of visitors to the site, and the most popular pages.

_ga
(Used to distinguish between users)
Powered by: bitus.lv
Duration: 12 months

_ga_*
(Used to distinguish between users)
Powered by: bitus.lv
Duration: 12 months

_gid
(Used to distinguish between users)
Powered by: bitus.lv
Duration: 24 hours

_gat_UA*
(Used to distinguish between users)
Powered by: bitus.lv
Duration: 1 minute

We use third-party cookies from Meta. These cookies are set by Meta Pixel to collect anonymous information such as the number of visitors to the site, and the most popular pages.

_fbq
(Used to distinguish between users)
Powered by: bitus.lv
Duration: 12 months

Keeping these cookies enabled helps us improve our website. Thanks!