Skip to main content

Bitus Home 60-C

Šī 60m² māja piedāvā pārdomātu un funkcionālu plānojumu, kur komforts satiekas ar efektīvu telpas izmantojumu.

Mājas vienā galā atrodas plaša viesistaba, kas organiski apvienota ar pilnībā aprīkotu virtuvi, radot atvērtu un mājīgu vidi kopīgai atpūtai un ēdiena gatavošanai. Lielie logi piepilda telpu ar dabisko gaismu un sniedz plašuma sajūtu, vienlaikus atverot skatu uz apkārtni.

  • Apbūves laukums

    60 m2

  • Garums
    12,50 m
  • Platums
    4,80 m
  • Mājas augstums
    4,25m
  • Dzīvojamā platība

    47,2 m2

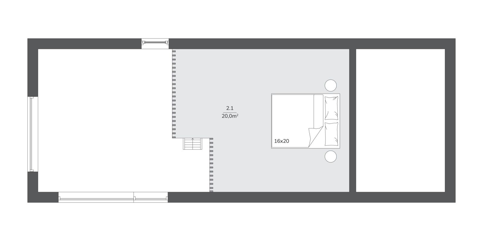
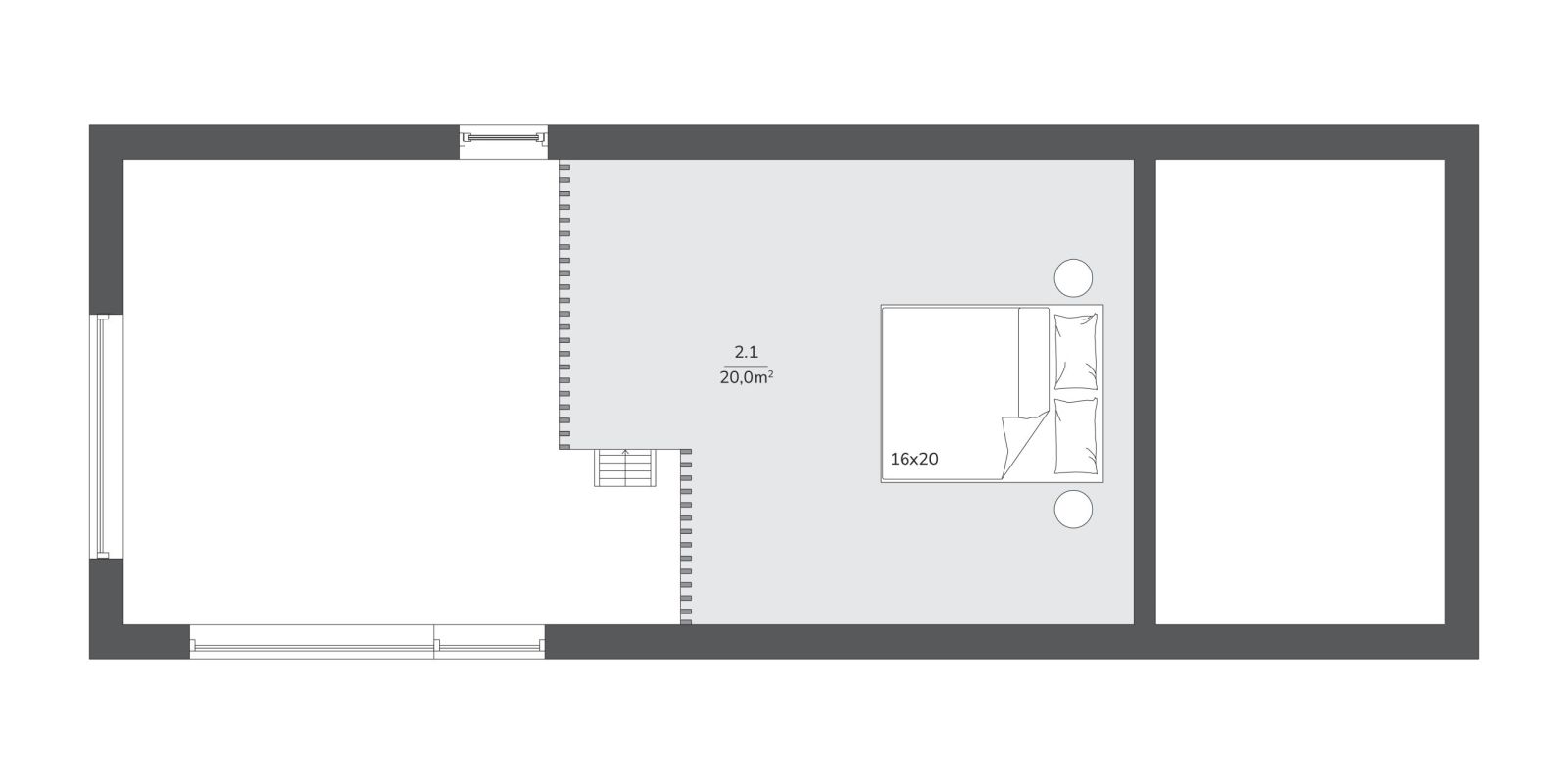
  • Bēniņi / Lofts

    20,0 m2

Mājā ir divas slēgtas guļamistabas, kas nodrošina privātumu un mierpilnu vidi ikvienam ģimenes loceklim.

Īpašu raksturu mājai piešķir lofts – daudzfunkcionāla zona, kas bieži vien kļūst par bērnu iecienītu rotaļu un atpūtas vietu. Tāpat tas var kalpot kā mājīgs stūrītis lasīšanai, papildu guļamvieta vai diskreta vieta mantu uzglabāšanai.

Pilnībā aprīkotā vannasistaba piedāvā visas nepieciešamās ērtības, savukārt mājas dizains ir pielāgojams – iespējams izvēlēties apdares materiālus, logu un durvju izvietojumu, lai māja organiski iekļautos vidē un atbilstu individuālajām vajadzībām.

Energoefektīva, ātri uzstādāma un pārdomāti veidota, šī māja apvieno racionālu telpas izkārtojumu ar plašuma sajūtu, nodrošinot harmonisku vietu gan ikdienas dzīvei, gan nesteidzīgai atpūtai.

  • BH 60 3 3
  • BH 60 3 4
  • BH 60 3 1
  • BH 60 3 2
  • BH 60 3 3
  • BH 60 3 4
  • BH 60 3 1
  • BH 60 3 2

“Bitus Home arhitektu veidotie mājokļi ir radīti tiem, kas novērtē pārdomātu dizainu, funkcionalitāti un dzīves kvalitāti visa gada garumā.”

Bitus Home

Radīta ilgtermiņam, būvēta ar pārliecību.

Mūsu mājas ir radītas Latvijas klimatam – tās sniedz patīkamu siltumu un drošību pat skarbākajās ziemās. Ražotas pēc stingriem Skandināvijas būvnormatīviem, tās izceļas ar izturību, energoefektivitāti un ilgmūžību.

Mēs piedāvājam ne tikai augstākās kvalitātes un komfortablu mājokli, bet arī pārskatāmas un prognozējamas izmaksas, kas ļauj jums droši plānot savu jauno māju, izvairoties no negaidītiem izdevumiem.


Sadarbības process –
soli pa solim.

Katrs veiksmīgs projekts sākas ar skaidru ceļu no idejas līdz gatavai mājai. Lai padarītu šo procesu vienkāršu un saprotamu, esam izveidojuši skaidru sadarbības procesa aprakstu. No pirmās sarunas līdz atslēgu nodošanai – katrs solis ir pārdomāts, lai nodrošinātu precizitāti, kvalitāti un prognozējamu rezultātu.

Ieinteresēja? Sazinies!

Privacy Overview

This website uses cookies so that we can provide you with the best user experience possible. Cookie information is stored in your browser and performs functions such as recognising you when you return to our website and helping our team to understand which sections of the website you find most interesting and useful.

Strictly Necessary Cookies

Strictly Necessary Cookies come from the current website (bitus.lv) and place cookies in the visitor's browser. First-party cookies help you make the website useful, by activating basic functions such as language and page navigation. First party cookies are always activated so that the website can function as optimally as possible.

[pll_language]
Set off: bitus.lv
Duration: 1 day

[moove_gdpr_popup]
Set off: bitus.lv
Duration: 12 months

3rd Party Cookies

We use third-party cookies from Google. These cookies are set by Google Analytics 4 to collect anonymous information such as the number of visitors to the site, and the most popular pages.

_ga
(Used to distinguish between users)
Powered by: bitus.lv
Duration: 12 months

_ga_*
(Used to distinguish between users)
Powered by: bitus.lv
Duration: 12 months

_gid
(Used to distinguish between users)
Powered by: bitus.lv
Duration: 24 hours

_gat_UA*
(Used to distinguish between users)
Powered by: bitus.lv
Duration: 1 minute

We use third-party cookies from Meta. These cookies are set by Meta Pixel to collect anonymous information such as the number of visitors to the site, and the most popular pages.

_fbq
(Used to distinguish between users)
Powered by: bitus.lv
Duration: 12 months

Keeping these cookies enabled helps us improve our website. Thanks!