Skip to main content

Bitus Home 60-A

Šī 60 m² māja ir pārdomāts un funkcionāls risinājums, kas piedāvā gan komfortu, gan gudrus telpas izmantošanas risinājumus. Atvērtā plānojuma viesistaba ar virtuvi veido mājas sirdi – plašu un gaišu telpu kopābūšanai, kur lielie logi nodrošina dabisku apgaismojumu un vizuāli paplašina telpu.

  • Apbūves laukums

    60 m2

  • Garums
    12,50 m
  • Platums
    4,80 m
  • Mājas augstums
    4,25m
  • Dzīvojamā platība

    47,2 m2

  • Bēniņi / Lofts

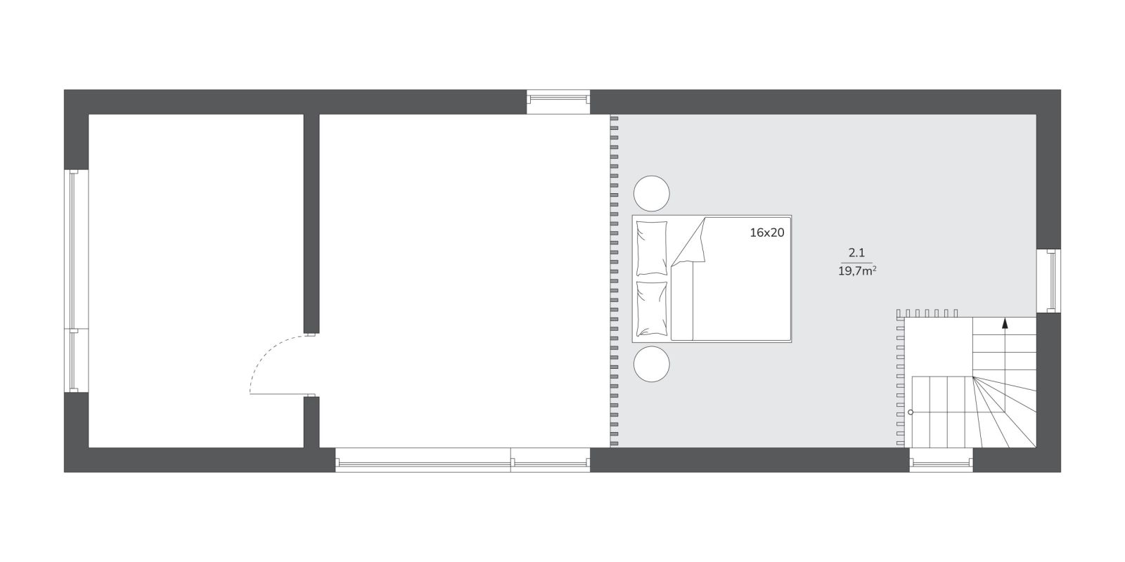
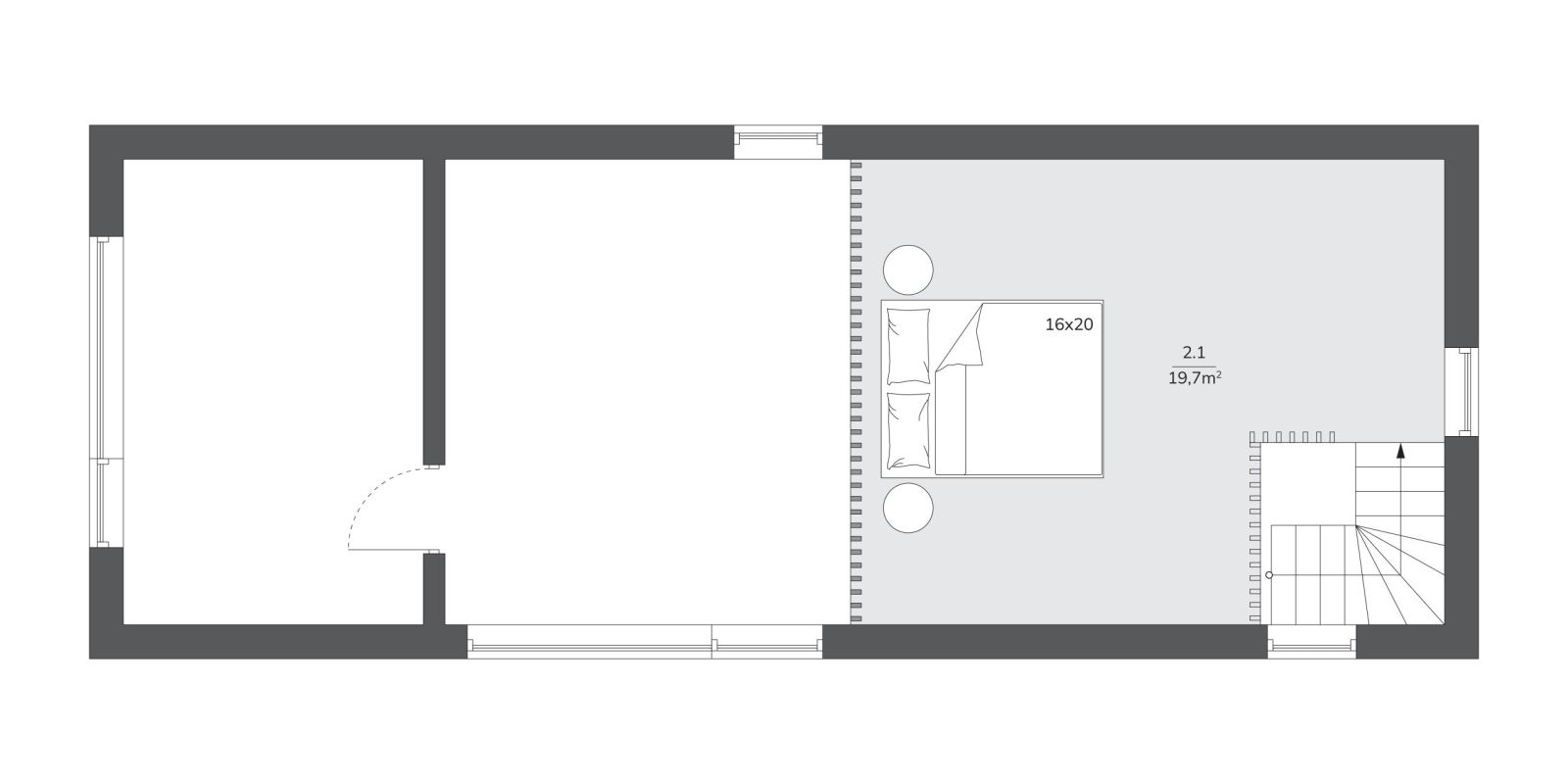
    19,7 m2

Mājā ir divas atsevišķas guļamistabas, kas sniedz privātumu un ērtības, savukārt lofts piešķir papildu dimensiju – bērniem tā var kļūt par aizraujošu spēļu un atpūtas zonu, bet pieaugušajiem par vietu lasīšanai vai viesu uzņemšanai. Uz loftu ved trepes ar iebūvētu skapi – praktisks risinājums, kas nodrošina papildu mantu glabāšanas iespējas, saglabājot māju kārtīgu un organizētu.

Pilnībā aprīkotā vannasistaba piedāvā visas nepieciešamās ērtības, savukārt mājas dizainu iespējams pielāgot – gan apdares materiālus, gan logu un durvju izvietojumu, lai tā harmoniski iekļautos apkārtējā vidē un atbilstu individuālajām vajadzībām.

Šī māja ir energoefektīva, ātri uzstādāma un piemērota gan ikdienas dzīvei, gan atpūtai, piedāvājot funkcionālu un estētiski pievilcīgu dzīves telpu.

  • BH 60 1 1
  • BH 60 1 4
  • BH 60 1 3
  • BH 60 1 2
  • BH 60 1 1
  • BH 60 1 4
  • BH 60 1 3
  • BH 60 1 2

“Bitus Home arhitektu veidotie mājokļi ir radīti tiem, kas novērtē pārdomātu dizainu, funkcionalitāti un dzīves kvalitāti visa gada garumā.”

Bitus Home

Radīta ilgtermiņam, būvēta ar pārliecību.

Mūsu mājas ir radītas Latvijas klimatam – tās sniedz patīkamu siltumu un drošību pat skarbākajās ziemās. Ražotas pēc stingriem Skandināvijas būvnormatīviem, tās izceļas ar izturību, energoefektivitāti un ilgmūžību.

Mēs piedāvājam ne tikai augstākās kvalitātes un komfortablu mājokli, bet arī pārskatāmas un prognozējamas izmaksas, kas ļauj jums droši plānot savu jauno māju, izvairoties no negaidītiem izdevumiem.


Sadarbības process –
soli pa solim.

Katrs veiksmīgs projekts sākas ar skaidru ceļu no idejas līdz gatavai mājai. Lai padarītu šo procesu vienkāršu un saprotamu, esam izveidojuši skaidru sadarbības procesa aprakstu. No pirmās sarunas līdz atslēgu nodošanai – katrs solis ir pārdomāts, lai nodrošinātu precizitāti, kvalitāti un prognozējamu rezultātu.

Ieinteresēja? Sazinies!

Privacy Overview

This website uses cookies so that we can provide you with the best user experience possible. Cookie information is stored in your browser and performs functions such as recognising you when you return to our website and helping our team to understand which sections of the website you find most interesting and useful.

Strictly Necessary Cookies

Strictly Necessary Cookies come from the current website (bitus.lv) and place cookies in the visitor's browser. First-party cookies help you make the website useful, by activating basic functions such as language and page navigation. First party cookies are always activated so that the website can function as optimally as possible.

[pll_language]
Set off: bitus.lv
Duration: 1 day

[moove_gdpr_popup]
Set off: bitus.lv
Duration: 12 months

3rd Party Cookies

We use third-party cookies from Google. These cookies are set by Google Analytics 4 to collect anonymous information such as the number of visitors to the site, and the most popular pages.

_ga
(Used to distinguish between users)
Powered by: bitus.lv
Duration: 12 months

_ga_*
(Used to distinguish between users)
Powered by: bitus.lv
Duration: 12 months

_gid
(Used to distinguish between users)
Powered by: bitus.lv
Duration: 24 hours

_gat_UA*
(Used to distinguish between users)
Powered by: bitus.lv
Duration: 1 minute

We use third-party cookies from Meta. These cookies are set by Meta Pixel to collect anonymous information such as the number of visitors to the site, and the most popular pages.

_fbq
(Used to distinguish between users)
Powered by: bitus.lv
Duration: 12 months

Keeping these cookies enabled helps us improve our website. Thanks!